← Back

The Solar Decathlon is a competition to design sustainable housing, and our assignment was New Attached Housing. We focused on the typology of a Boston row house and used shipping containers to reduce costs and use local materials from the port. We also used sustainable systems and a PV grid to make our building generate 2,835kWh/yr and use 56% less water than a typical home built. This resulted in a home that is resistant to flooding, more energy-efficient in operations and construction, and that lowers the initial investment needed to build.

Project Image

Our design builds on affordability, sustainability, and comfort to create a better housing solution for South Boston. Our goal is to use reusable and recycled resources to construct the structure of our attached housing project, shipping containers recycled from Conley Container Terminal, the local shipyard. Our design is built off the ground to raise awareness of sea level rise and to prove how architects can design and build against climate change for the future.

Slide 1
Slide 2
Slide 3
Slide 4

PROJECT HIGHLIGHTS

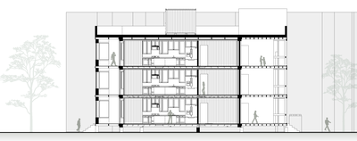
ARCHITECTURE: The design focuses on affordability, sustainability, and on-going assembly to produce a comfortable lifestyle for the growing community of South Boston. Locally sourced materials are used throughout and recyclable materials such as shipping containers, glass bottles and recycled lumber are used to produce a reproducible program for building performance and energy efficiency. Our goal is a space that offers a low carbon footprint that will house generations of Southie's new families.

ENGINEERING: This project allows us to accomplish our goals of a low carbon footprint, building performance, and energy efficiency. Structurally our building is supported by shipping containers and its fastened foundation, and carbon emissions have decreased due to efficient construction and systems. Elements such as rainwater systems, heat pumps, mini-splits, ERV air pumps, and PV panels are used to reach LEED Platinum.

MARKET ANALYSIS: With rent rising higher than ever, people are often forced to find a more affordable home. Our design focuses on providing the lowest construction cost to make the buying rate more affordable. Neighboring units are listed at three times the price. Our proposed system of recyclable, low-cost materials enables us to achieve significant cost savings.

DURABILITY & RESISTANCE: The selection of materials and systems used in our design is constructed for durability. The materials selected for construction and furnishings are recyclable and long-lasting to ensure the building's longevity, while the systems are placed in locations with easy access for maintenance.

EMBODIED ENVIRONMENTAL IMPACT: By using recycled and reclaimed metal for our structure on the exterior and wood framing for our core, we reduced the use of virgin materials almost completely. This cradle-to-cradle approach to using and sourcing responsibly is a trend we hope to advance.

INTEGRATED PERFORMANCE: By analyzing our site first, we can use the unique characteristics of a beachfront property to our advantage. This includes using the above-average rainfall and wind to create a rainwater collection system and installing small rooftop wind turbines. Additionally, we are using the lack of skyscrapers to create a vast PV network that produces excess power.

OCCUPANT EXPERIENCE: Our design allows occupants to change and adapt the spaces so they can grow with them. Every unit is designed as a one-bedroom apartment, with a multi-use space on the north. Over time, if the occupant wants to expand the unit to a two-bedroom apartment, they can construct a new room in the multi-use space.

COMFORT & ENVIRONMENTAL QUALITY: Our use of architectural and sustainable design maximizes the interior comfort of each unit. By placing the main living space closest to the south facade, natural daylight is used to enhance the quality of the most used programs. Plus, the use of natural materials and active systems for heating and cooling improves the occupants’ health and comfort.

ENERGY PERFORMANCE: It's possible to make any building net zero with enough pricey systems, but our goal was to use simple tricks to hit this goal. This includes low-emitting LED bulbs, co-mingled heating for all units, and smart technology. The tech includes presence sensing to turn off systems when not in use.

Final Image Final Image